Company Logo
9351 Mosher Road, Elk Grove, CA 95624 Photo
9351 Mosher Road, Elk Grove, CA 95624 Photo
9351 Mosher Road, Elk Grove, CA 95624 Photo
9351 Mosher Road, Elk Grove, CA 95624 Photo
9351 Mosher Road, Elk Grove, CA 95624 Photo
9351 Mosher Road, Elk Grove, CA 95624 Photo

3 Total Photos [Click to View All]

9351 Mosher Road
Elk Grove, CA 95624
$2,900,000
| 19.25 Acreage

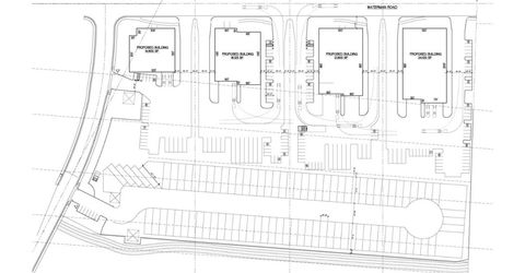
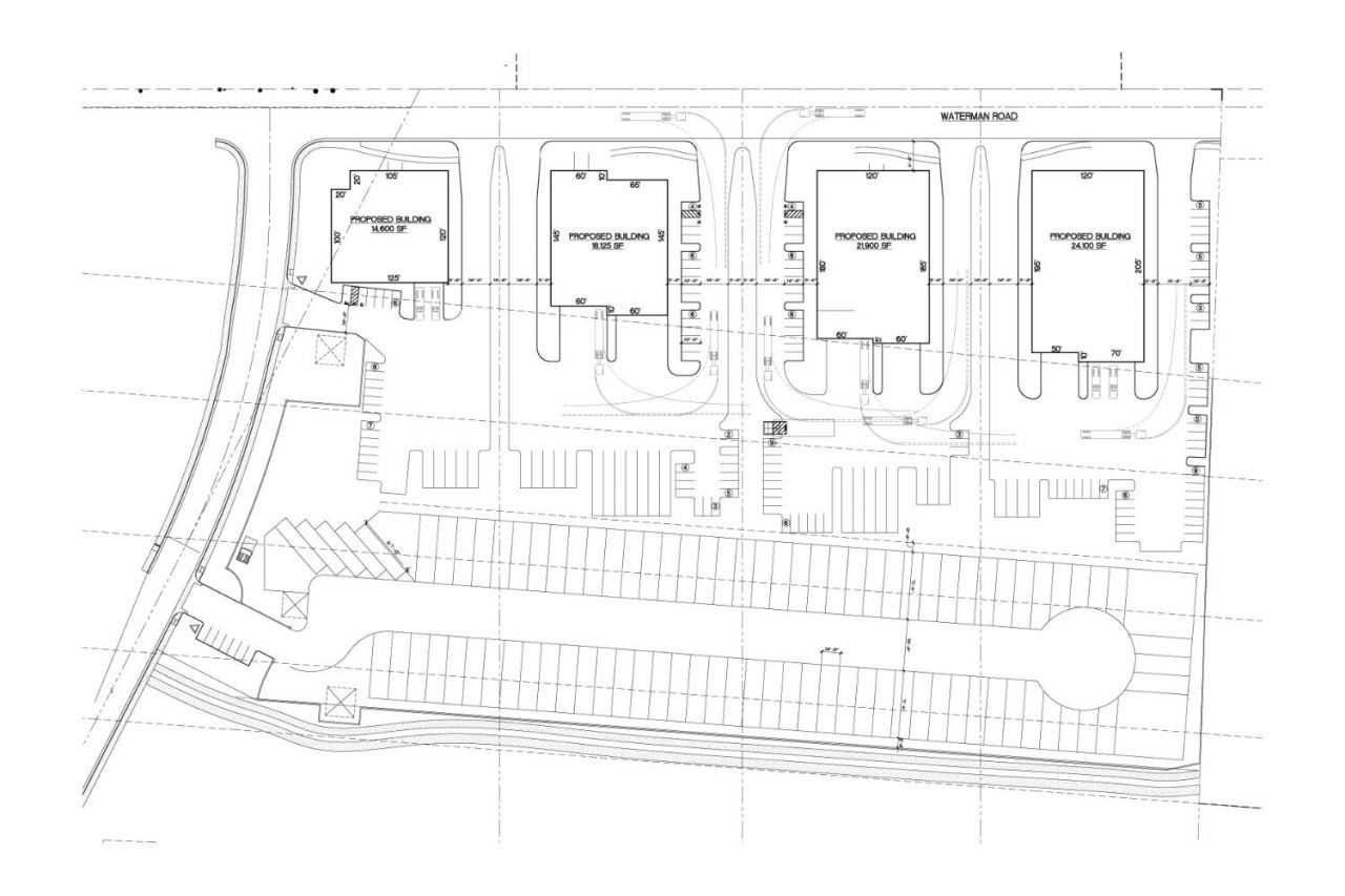
19.25 level acres of land surrounded by a great deal of developing industrial sites. The property is zoned for MP (Industrial Office Park) with an underlying General Plan designation of Light Industrial.

Listed By / Presented By

Listed By

Agency Name: Bayless Properties, Inc
Agency Phone: 916-641-0300
Agent Name: Douglas Bayless

Presented By

Agency Title: Chase International Real Estate
Agency Phone: 775.588.6130

IDX logo

Contact a Chase Agent for More Information

Property Details

Property Type: Land - Commercial
Lot Size: 19.25 Acres
MLS ID: 226015246

Feature Descriptions

Days on Site: 66
Fencimg: None
Lot: Corner
Other Equipment: None
Parcel#: 134-0110-015-000
Sewer: Public Sewer
Topography: Level
Utilities: Public, Natural Gas Available, Water Available
Water: Public

Schools

High School: Elk Grove Unified
Middle School: Elk Grove Unified
Elementary School: Elk Grove Unified

Neighborhood Map

Driving Directions

Demographics

Estimate My Payments

  • Estimated Payment
    $7,299.98
  • Principal & Interest
    $6,454.14
  • Property Tax
    $0.00 (data not provided by mls)
  • Homeowner's Insurance
    $845.83
(Payments are an estimate and may vary by lender)

Mortgage Calculator

Change Payment Information

%
years/fixed
yearly
yearly (est.)
Contact Photo

We're Here to Help

Connect with our team of knowlegable local agents to guide your next move with style and grace.

Login to My Homefinder

Pixel